| Owner: | Archdiocese of Detroit |
| Location: | Detroit, Michigan |
| Role: | Architecture, Planning, Historic Preservation |
| Completion: | 2013 |
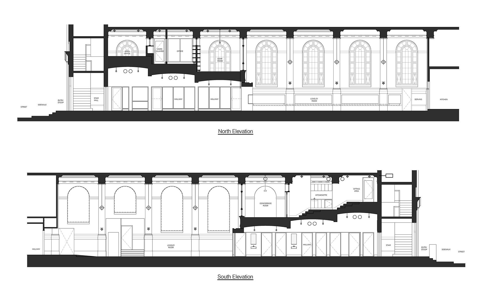
The first cathedral and the oldest existing church building in the City of Detroit was built in 1844 during the tenure of Bishop Peter Lefevre. Minimal change beyond general building maintenance has occurred since that time. The 2012 restoration master plan envisioned minimal physical changes to the church building with primary focus on improving the physical environment for patron comfort. The 2013 infrastructure project maintained the buildings unique historic character while providing much needed air conditioning for the first time in the buildings 170-year history. The adaptive reuse of St. Catherine’s Chapel in 2013 for use as the Warming Center included a new commercial kitchen, cold and dry storage, laundry facilities, private bathrooms and showers, and offices. The original choir loft was converted to include a board room, accommodations for nursing, and offices for legal services. The church is listed on the National Register of Historic Places.