| Owner: | Chelsea Center for the Arts |
| Location: | Chelsea, Michigan |
| Role: | Planning, Historic Preservation |
| Completion: | 2010 |
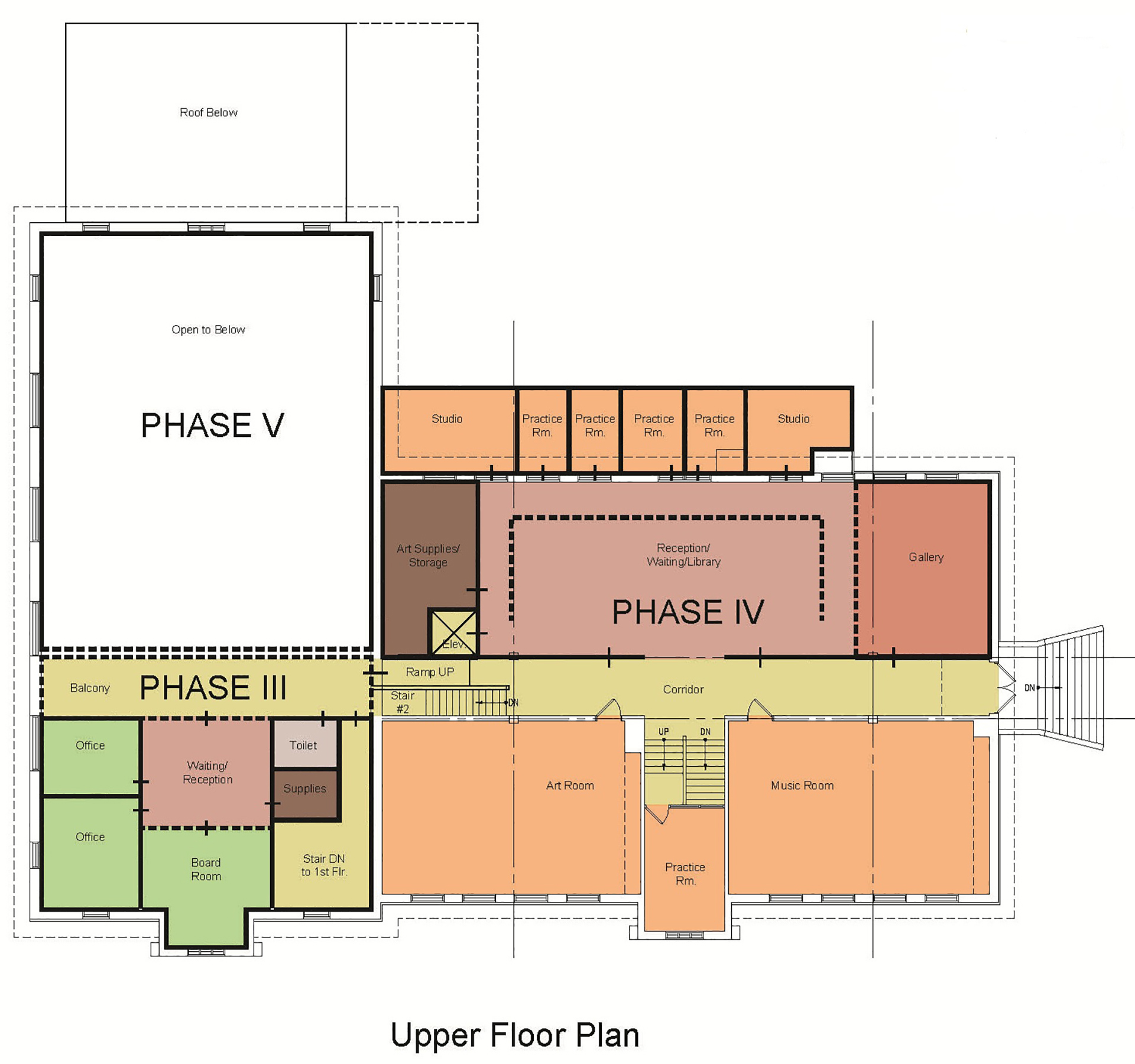
The Chelsea Center for the Arts building was constructed in 1925 in a restrained academic gothic revival style. The historic former St. Mary’s Parish School is located in downtown Chelsea, Michigan in a neighborhood containing a variety of modest residences dating from the late nineteenth century through the early twentieth century. Since its founding in 1998, the CCA has been largely focused on the programmatic mission of the organization, which includes a rich array of visual arts classes and workshops, private and group music instruction, gallery exhibitions, summer youth art camps, community public art collaborative projects, and free family programming. The building also contains a community preschool and rehearsal space for the Purple Rose Theater. The rehabilitation plan resulted in a prioritized schedule of recommended actions for the near-term, mid-term and long-term maintenance and rehabilitation of the building. The thorough investigation of the site’s existing conditions, historical development and significance, maintenance issues, and action steps for rehabilitation will provide CCA with a road map for the future.