| Owner: | Loyola High School |
| Location: | Detroit, Michigan |
| Role: | Architecture, Planning, Historic Preservation |
| Completion: | 2015 |
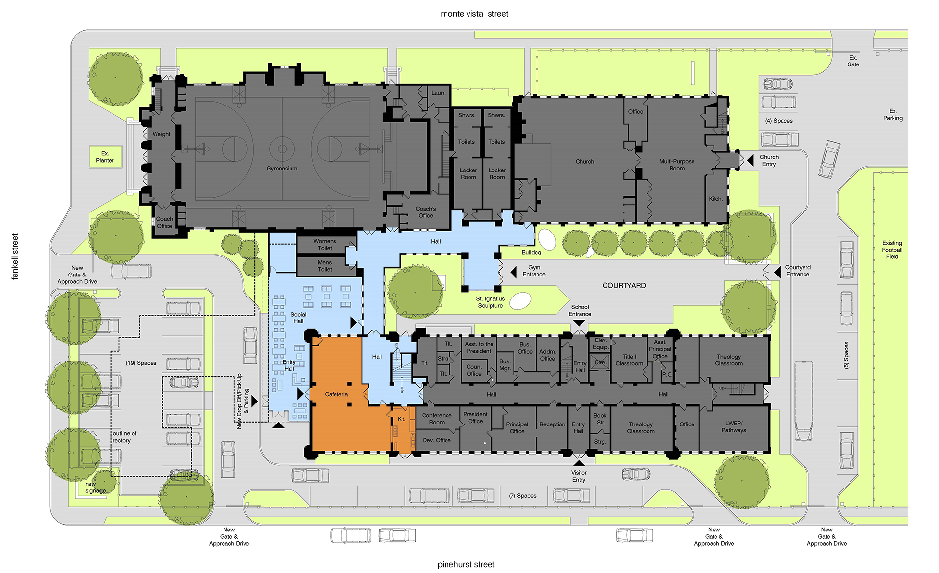
The campus master plan concept provides a "framework" or "road map" for the school leadership to evaluate recommended actions for the near-term, mid-term, and long-term maintenance and rehabilitation of the campus. The campus includes four primary structures; school building, rectory, gymnasium, and the chapel/church building. All four structures are generally in fair to good condition. The master plan envisioned the complete renovation of the interior and exterior of the campus in a phased approach. The proposed building and site plan changes include the following: new secured visitor and staff entry and parking along Pinehurst; new secured entry courtyard; new student drop-off and pick-up at north end of the school building; demolition of rectory and construction of new addition and parking lot at the corner of Fenkell and Pinehurst; and a new artificial turf practice football field. There will also be an emphasis on infrastructure issues such as roofing and masonry restoration.