| Owner: | Mehlhose Building LLC |
| Location: | Wyandotte, Michigan |
| Role: | Architecture, Historic Preservation, Interiors |
| Completion: | 2016 |
| Awards: | Michigan Historic Preservation Network Building Award 2019, State of Michigan Special Tribute 2019, Wyandotte Beautification Award 2018 |
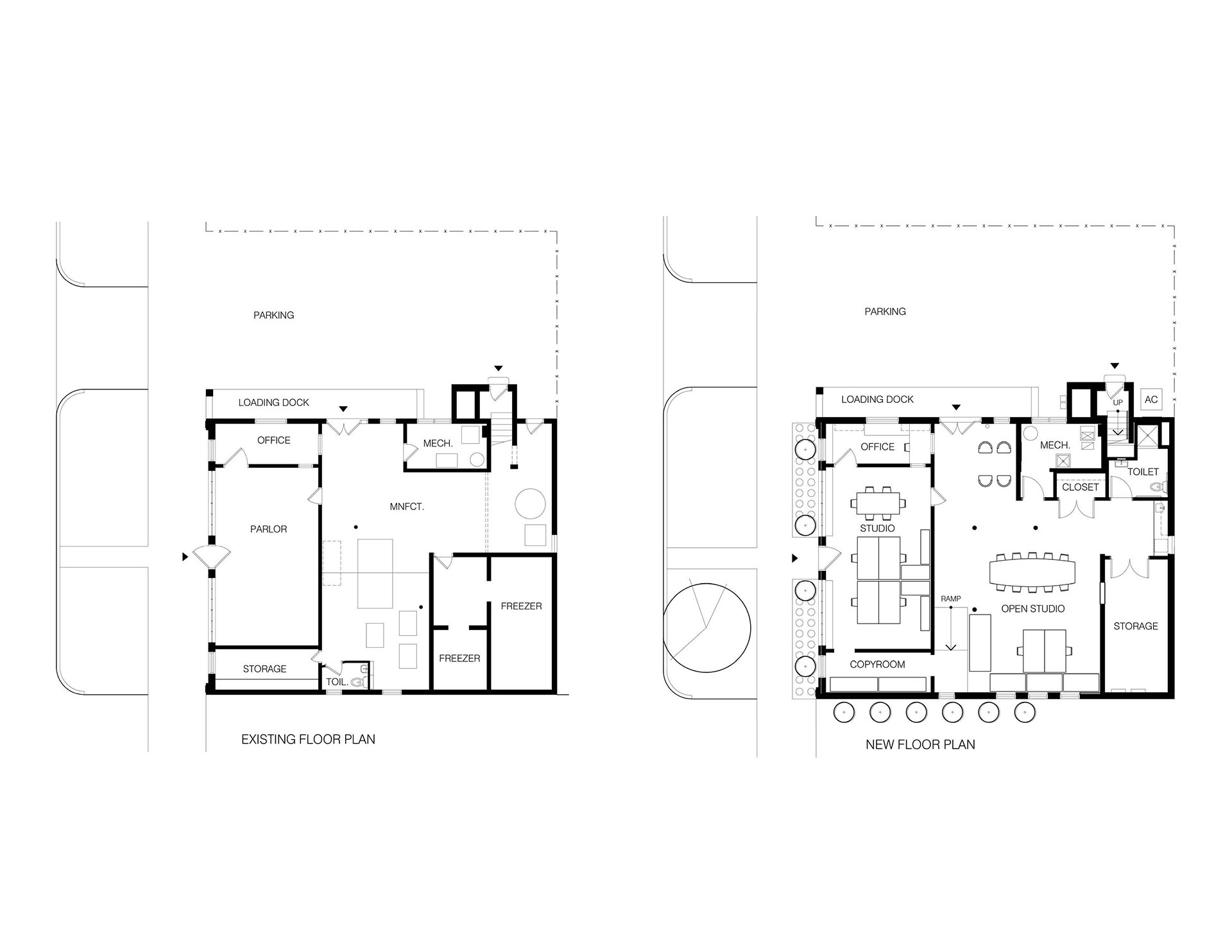
The “iconic” Mehlhose Ice Cream Building is located 4 blocks west of downtown Wyandotte within a predominantly residential neighborhood. The former home of the second oldest continuously operating ice cream supplier in the United States has been completely restored. The 2,000sf first floor now contains the offices of Thomas Roberts Architects, and the 450sf second floor will be an apartment. The exterior renovation included masonry tuckpointing, steel sash window restoration, recreation of the original marquee, and a new EPDM roof. The interior required extensive renovations in the manufacturing portion of the building as well as new mechanical, electrical, and plumbing systems throughout. The Mehlhose Ice Cream Building received preliminary approval and is qualified for National Register Nomination.