| Owner: | Fox Creek Partners |
| Location: | Detroit, Michigan |
| Role: | Planning |
| Completion: | 2019 |
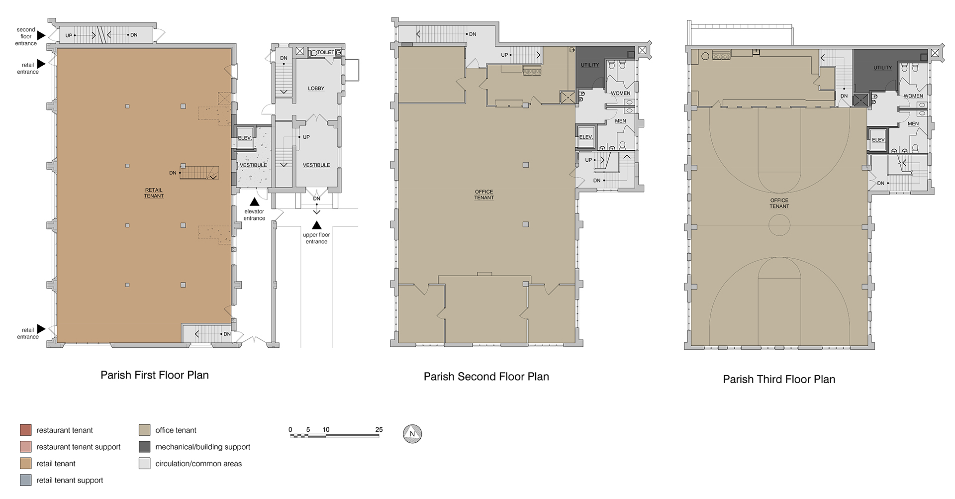
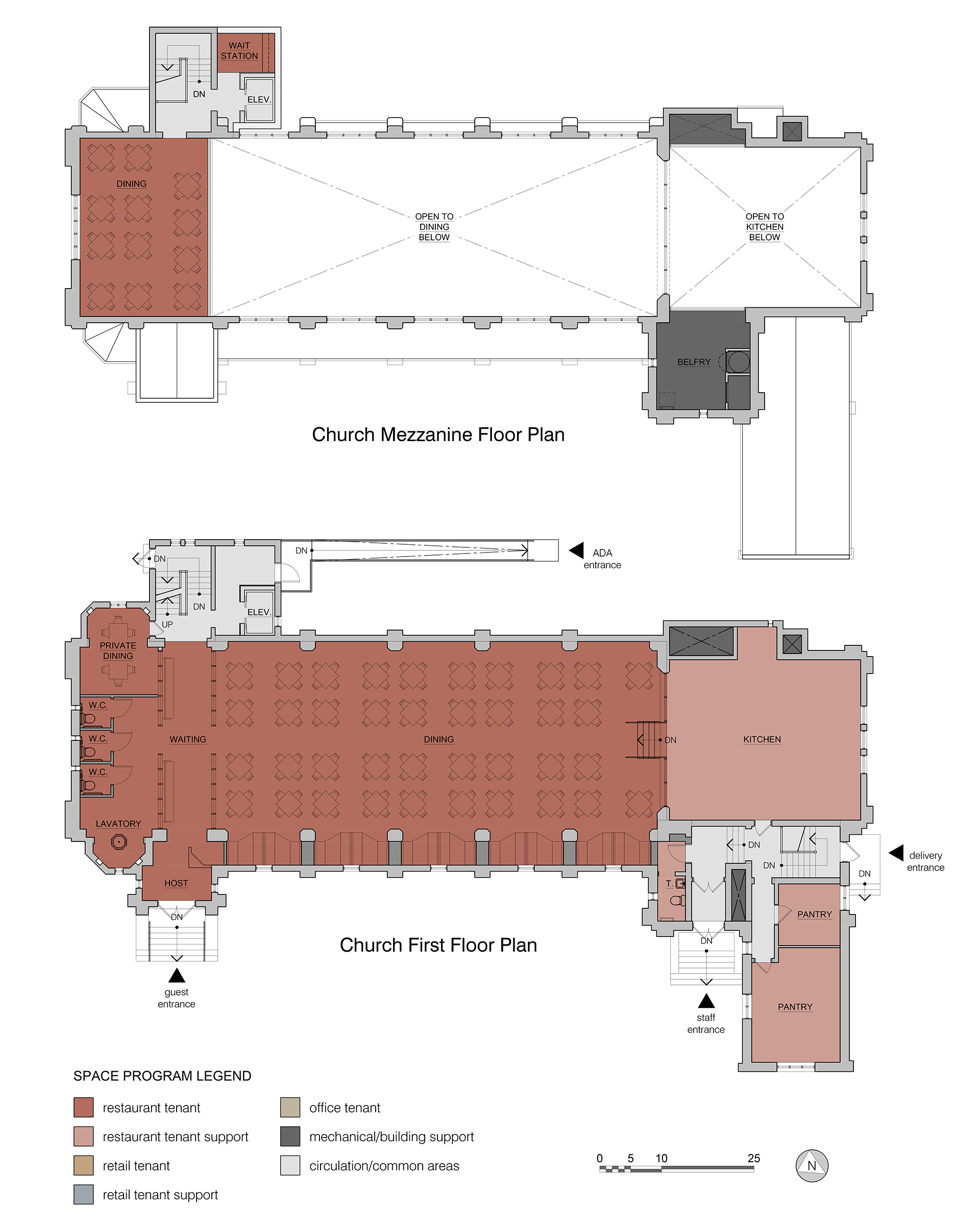
St. Columba's Episcopal Church in Detroit, Michigan was established in 1913 and continued functioning until 2003. In 1923, the church built the St. Columba Parish Building (SCPB) along East Jefferson Avenue. It is a three-story, five bay, brick and stone building designed by architect Lancelot Sukert. It is one of the most outstanding structures in the Jefferson-Chalmers Historic Business District. In 1927, a new (permanent) church building was constructed (SCCB) in the English Gothic Revival style, also designed by architect Lancelot Sukert. The buildings were purchased in 2015. TRA was hired to provide a building assessment report for the purpose of evaluating the overall condition of the existing property, determining its ability to satisfy future program needs, and aiding the owner in making an informed decision regarding the next steps of this project.