| Owner: | Tibbits Opera House Foundation and Arts Council |
| Location: | Coldwater, Michigan |
| Role: | Architecture, Planning, Historic Preservation |
| Completion: | 2019 Historic Structure Report, 2017 Capital Campaign, 2012 Design Development Review, 2002 Design Development, 1998 Master Plan |
| Awards: | AIA Michigan Honor Award 2016, AIA Detroit Honor Award 2015, NACIA Copper Award 2014, Michigan Historic Preservation Network Preservation Gem Award 2014, Michigan Historic Preservation Network Community Support Award 2014, ABC “Excellence in Construction” Award 2013, Governor’s Award for Historic Preservation 2013 |
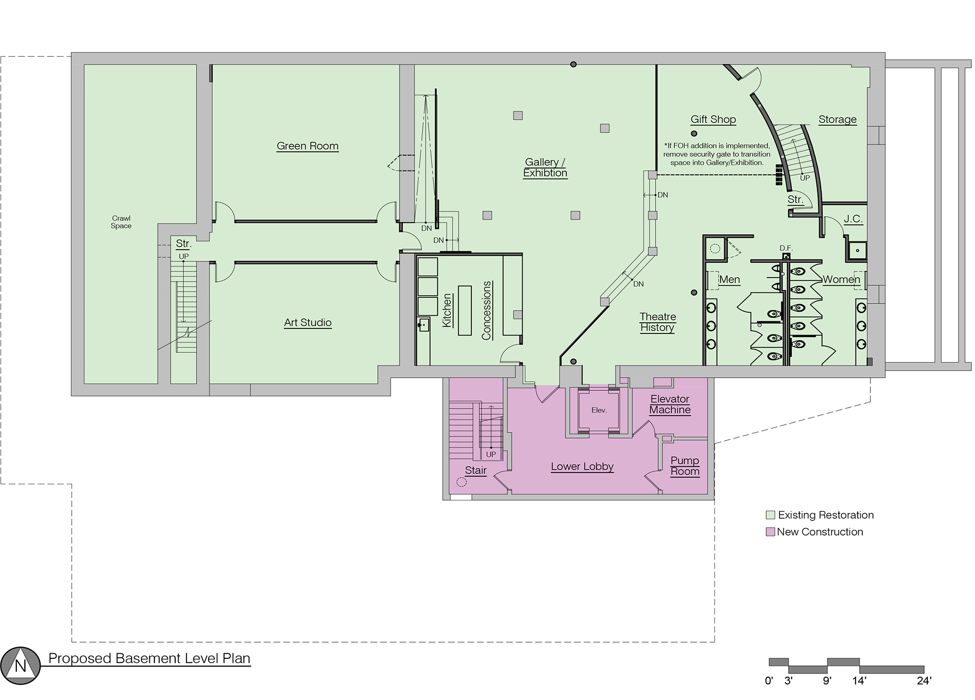
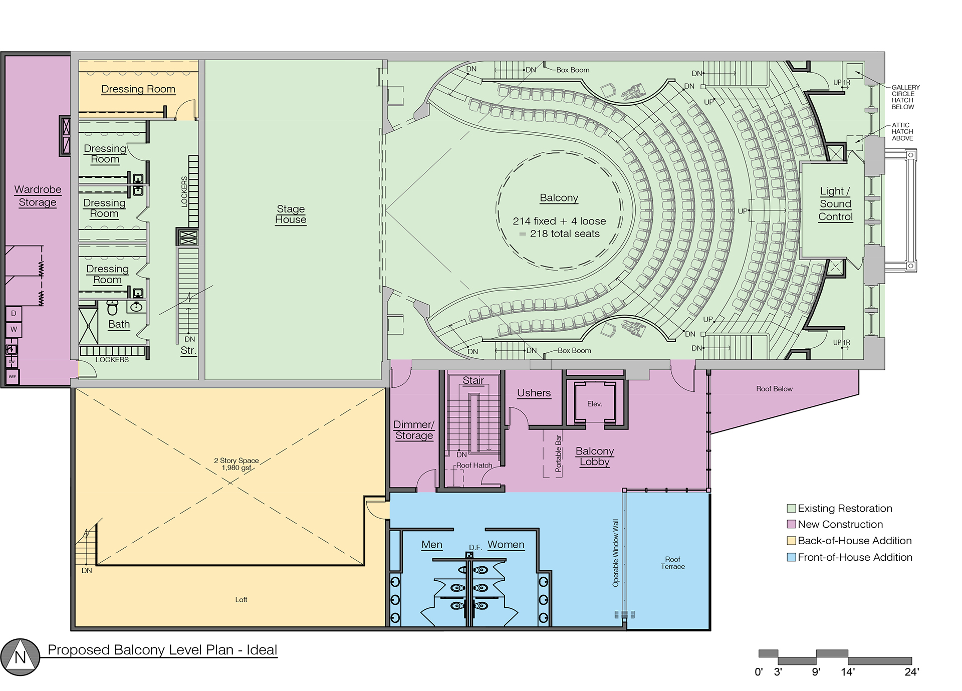
Over the years, a variety of master plan concepts have been provided for the continued improvement and development of the Tibbits Opera House. The expectations for these reports was to assess the current assets and liabilities; and establish a concept plan that would serve local performing arts needs including theatrical operations, audience comfort, building stabilization, and restoration. The elements included restoration of the original building and expansion of the facilities; incorporation of modern theatrical technology; and addressing issues of accessibility, life safety, and environmental control. It was important that the design preserved, to the extent possible, the historical character and integrity of the opera house. The Tibbits Opera House is listed on the National Register of Historic Places.